Projects

Projects

Current Land Use Applications

Project Address Summary Staff Contact
Ballinger Short Plat 13582 Chain Lake Rd. 3 lot short plat with 1 existing duplex  Anita Marrero
Monroe West Preliminary Plat 18614 and 18718 134th St SE Proposed 39-lot preliminary subdivision. Anita Marrero
Monroe 30 Preliminary Plat 175th Ave SE 213 lot subdivision. Anita Marrero
Mean Bean Site Plan Review 134 S Ferry Avenue New drive thru coffee stand. Amy Bright
Trombley Heights Preliminary Plat 13224 191st Ave SE 49-lot plat.  Leigh Anne Barr 
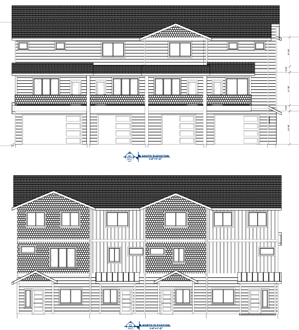
17509 W Main St  13 townhomes.  Leigh Anne Barr 
Davis Pre-Annexation Zoning  13104 197th Ave SE Pre-Annexation zoning for approx. 23 acres. Amy Bright
Gold Creek Church CUP 16891 146th St SE Church in Light Industrial Zone. Amy Bright 
SRFR Station 32 Site Plan Review 19959 Oaks Street New fire station. Anita Marrero
Sayah Cabins Reasonable Use & Variation 13626 179th Ave SE 7 short term cabin rentals.  Amy Bright 
Mickelo Construction Site Plan Review 16731 Tye St SE New building.  Leigh Anne Barr 
Rodlands Townhomes 17509 W Main St. 13 townhomes, 3 buildings. Leigh Anne Barr
Kaison Flats Site Plan Review 18900 Block of Blueberry Lane 75 townhomes. Amy Bright 

Under Construction/Out of Review

Name Address Description Staff Contact
Safe Harbor 9 Short Plat 16096 174th Dr SE 9-lot short plat. Amy Bright 
Eaglemont 9 (formerly Cooper Ridge) 19785 137th St SE  33 lot plat Amy Bright 
Eaglemont 8 Subdivision 13325 191st Ave SE 7 lot short plat  Amy Bright 
Garibaldi Subdivision 13424 & 13624 Chain Lake Rd 90 lot plat Anita Marrero
Stanton Station 149th St & 179th St 22 lot subdivision Amy Bright
Tsaruk Townhomes  15025 179th Ave SE Two new townhome buildings - one 3 unit building and one 5 unit building.  Anita Marrero
Riverside Station 135 & 143 S Ann St New mixed use commercial/residential building. Leigh Anne Barr
Trombley Hill Water Main Trombley Hill Replacement of water main  Kate Tourtellot

Garibaldi Concept Art

Garibaldi concept

Riverside Station Concept Art

Riverside Station Concept Art

Milt Smith Townhomes Concept Art

Milt Smith Townhomes

City Hall Remodel Concept Art

cityhall

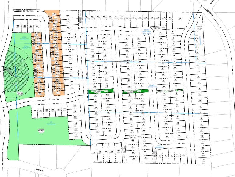
Monroe West Plat

Monroe West Prel Plat

Tsaruk Townhomes Drawings

Tsaruk townhomes

Stanton Station Townhomes

Stanton Station Townhomes
 
 

Monroe 30 Development Agreement Plan

Monroe 30 Development Agreement
 

Sunnyside Townhomes

Sunnyside

Woods Creek Highlands

Woods Creek Highlands